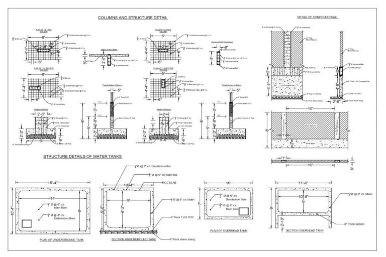
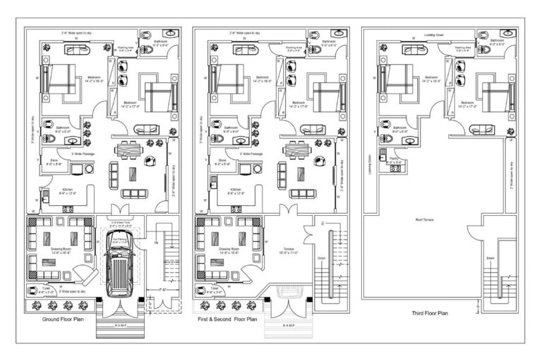
We offer comprehensive architectural and structural drawings for residential, commercial, and industrial construction projects. Additionally, we provide interior design planning tailored to meet the specific requirement of each project.
3D Visualization:
We provide 3D models and views or animation for both the exterior and interior of projects tailored to client specifications. These visuals provide a clear vision of the project’s future appearance upon completion, helping clients visualize the end result comprehensively.
Construction:
Our team, supervised by qualified civil engineers, includes skilled and non-skilled workers who execute tasks precisely as per architectural drawings. This ensures high-quality workmanship, adherence to project specifications, and meets the expectations of both clients and architects, maintaining project timelines and standards.
Interior Designing:
Our creative team conceptualizes interior designs according to the premises or project requirements, presenting them to our valued clients through 2D and 3D presentations. This approach effectively visualizes the proposed designs, ensuring clarity and alignment with client expectations.
3D Detail Layout:
We create 3D layouts for residential, commercial, and industrial projects, whether proposed or existing. These layouts include detailed asset representations tailored to project specifications, ensuring comprehensive visualization and planning.
Government Approval & NOCs:
We have an efficient team to obtain all necessary approvals or NOCs for construction of residential, commercial, and industrial projects from relevant government institutions.
Tender Documentation:
We prepare comprehensive tender documentation for civil works and participate in the entire bidding process, from pre-bid meetings to tender finalization.
Estimation / BOQs
We conduct detailed quantity surveys and prepare precise estimation and Bill of Quantities (BOQ) documents for residential, commercial, and industrial projects. This involves analyzing drawings and specifications comprehensively to ensure accurate cost assessments and efficient project planning.